BACKYARD SUITE PLANS

A FRIENDLY REMINDER

Backyard suite plans displayed reflect the area of the living space only. Therefore, submit your inquiry for the total building area.

Before selecting a plan, please ensure a representative from garage suites has reviewed your property. Please note, all standard plans displayed are subjected to the bylaws stipulated within the municipality; therefore, any modifications required to the plan will be an additional fee. For further information regarding the fee structure, please contact Anomaly Drafting and Design.

 
CONNECT ME TO GARAGE SUITES
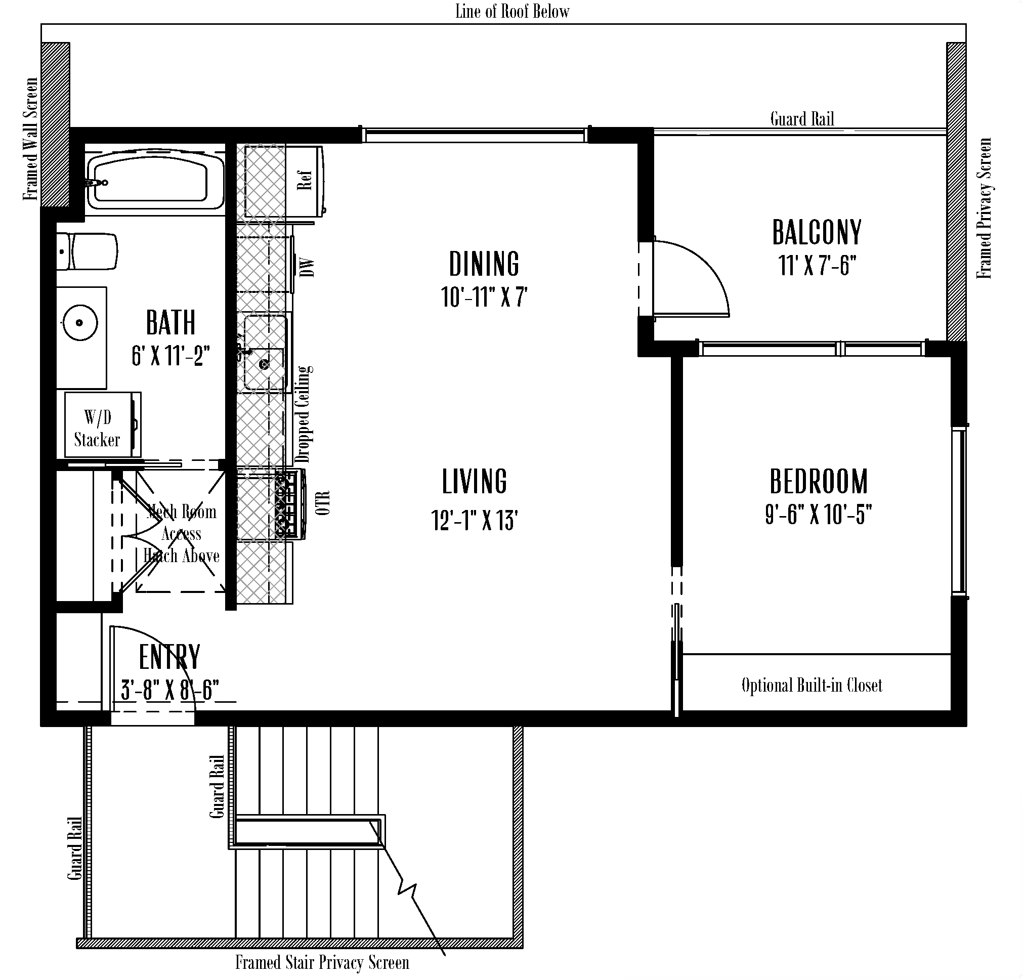
PD015 - The Halden Garage Suite Floor Blackline.png

The Halden

597 Sqft Garage Suite: 1 Bedroom, 1 Full Bath w/ Laundry, Kitchen, Living Room, Dining Room, Large Balcony, and Private Entrance.

 
PD014 - GARAGE SUITE FLOOR CROPPED.jpg

The Xavier

740 Sqft Garage Suite: 2 Bedrooms, 1 Full Bath, Large Kitchen, Living Room, Office Area, Upstairs Laundry, Large Balcony, and Lots of Storage!!

PD013 - The Maisley Upper Floor.jpg

The Maisley

368 Sqft Garage Suite: Studio apartment, Main Bath, Full Kitchen, Living Room Area, Laundry, Large Storage Closet, and Large Balcony.

 
PD012  - Garage Suite Floor Layout Website.jpg

The Sampson

682 Sqft Garage Suite: 1 Bedroom + Den, Walk-in Closet, Main Bath, Elevator, Kitchen with Island Dining, Optional Fireplace, Large Great Room, and Balcony.

 
PD010 - The Benjamin - The Garage Suite - Brochure.jpg

The Benjamin

677 sqft Garage Suite: 1 Bedroom + Den, Main Bath, Laundry Closet, 2 Storage Closets, Island Range kitchen, Large Great room, and Large Balcony.

 
PD008 - The Dawson.jpg

The Dawson

644 sqft Garage Suite: 1 Bedroom, Walk-in Closet, Large Laundry, Main Bath, and Front Entry Storage.

 
PD007 - Main Floor PDF.jpg

The Willow

472 sqft Garage Suite: 1 Bedroom, 1 Bath, Full Kitchen, Laundry, Great Room, and Large Balcony.